
If you’re looking for a cozy and spacious home in a peaceful neighborhood, this red brick bungalow with 3+1 bedrooms, and 3 bathrooms on a sprawling 1-acre lot with a finished basement is definitely worth considering. Located in the tranquil area of Downeyville, this property has a lot to offer with its impressive backdrop and country setting.
As soon as you step inside the house, you’ll be greeted by the bright and airy living space with an open-concept living and dining area. The bay window and sliding doors provide ample natural light and create a welcoming atmosphere. The floors add a warm touch, and the elegant finishes throughout the home create a relaxed feel.
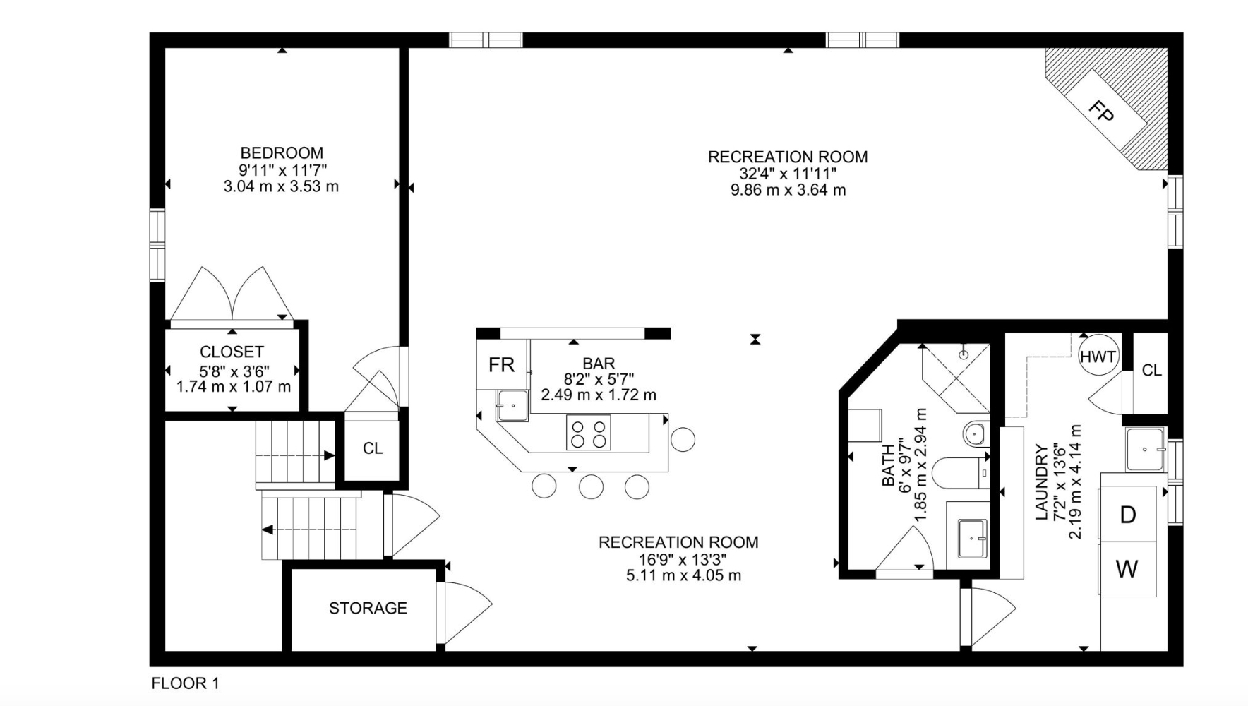
The fully-finished basement is one of the standout features of this property. It includes a bedroom, a 3-piece bathroom with a urinal, a wet bar, a gym area, a laundry room, and a cozy fireplace. This space is perfect for relaxing, hosting gatherings, or even converting into a separate living space. You’ll have plenty of room for all your hobbies and interests.
When it’s time to unwind, head to the fully fenced backyard. The pergola provides shade and adds character to the space, while the hammock and fire pit offer the perfect place to relax and enjoy the outdoors. The hot tub is an excellent feature that adds relaxation to your lifestyle, while the perennial gardens and adjoining planted forest add a touch of nature to your surroundings. The garden shed provides ample storage for your tools and equipment.
Overall, this red brick bungalow is a must-see for anyone looking for a comfortable and convenient home with an abundance of flora and fauna. The combination of functional, spacious living areas, decently sized bedrooms, and beautiful outdoor space make this property an excellent investment for families or anyone who loves to entertain.
Book a showing today and see for yourself all that this property has to offer!
 
           
           
          














































